Neubauwohnanlage mit Villen und Reihenhäusern in Fuente Álamo, Murcia.
Dieser Standort bietet eine außergewöhnliche natürliche Umgebung, fernab vom Trubel der Großstädte und dem touristischen Druck der Küste. Darüber hinaus verpflichten wir uns zu einer nachhaltigen Entwicklung, minimieren unsere Umweltbelastung und maximieren die Integration in die lokale Gemeinschaft. Hier werden Ihre Träume von einem ruhigen und nachhaltigen Lebensstil wahr. Stellen Sie sich vor, Sie wachen jeden Morgen in einer atemberaubenden Naturlandschaft auf, umgeben von ruhigen Landschaften und der einzigartigen Schönheit der murcianischen Landschaft.
Bei diesem Projekt stehen Energieeffizienz, die Verwendung umweltfreundlicher Materialien und die harmonische Integration in die ländliche Umgebung im Vordergrund. Vom Entwurf der Immobilie bis zur Planung der Entwicklung, um unseren CO2-Fußabdruck zu reduzieren und verantwortungsbewusste Praktiken in allen Bereichen zu fördern.
Video-Gegensprechanlage.
Farblich lackierte Sicherheitstür mit Schloss und vandalismussicheren Beschlägen.
Schränke mit Stauraum, innen verkleidet, weiß lackiert.
Küchenmöbel mit Elektrogeräten
Warmwasser durch Aerothermie.
Elektrische Rollläden.
Pergolen auf Sonnenterrassen.
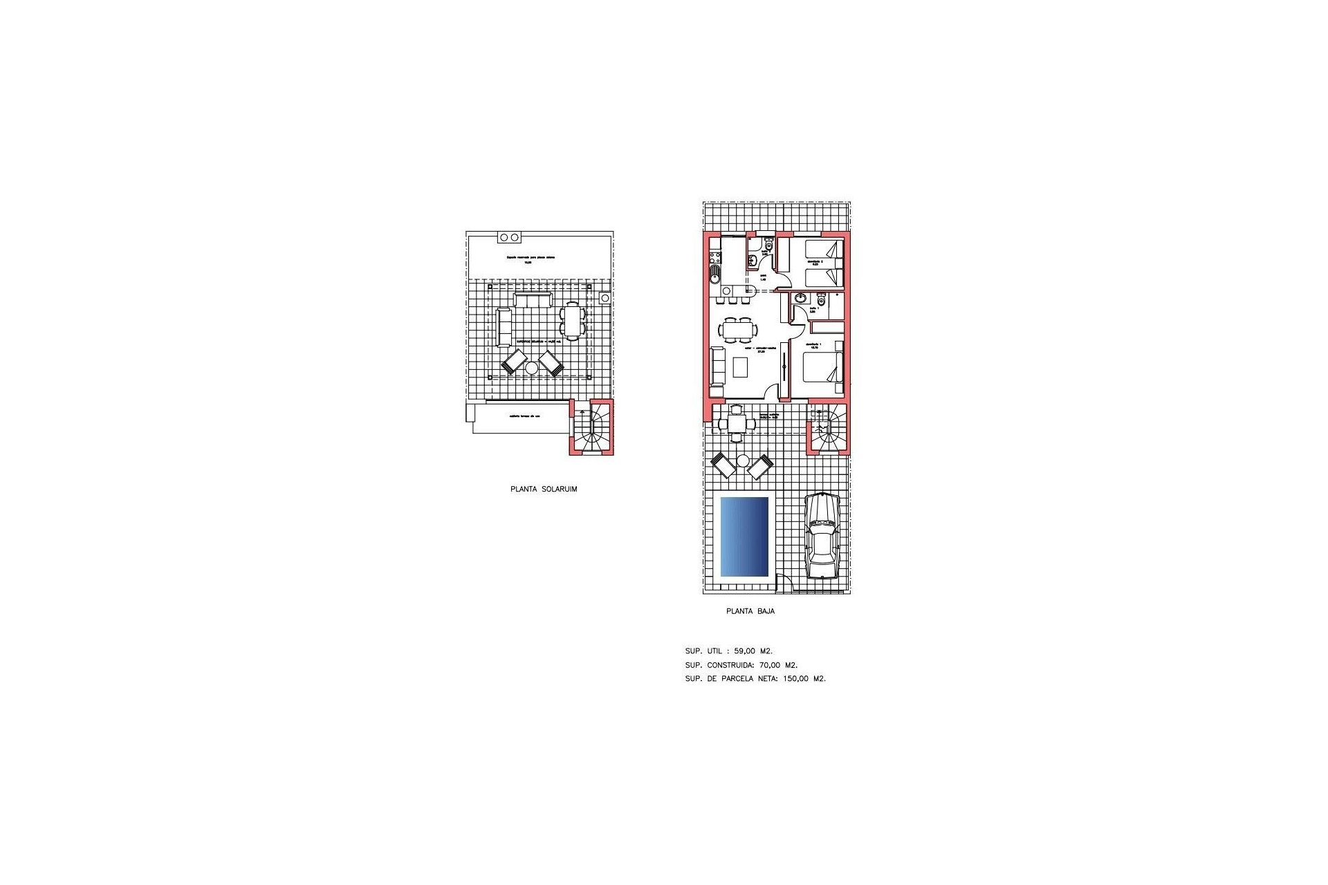
Privater Pool 2,5 x 4,5 m mit Unterwasserbeleuchtung und Salzwasser-Chlorungssystem.
Vorinstallation für Außenküche/Whirlpool auf der Sonnenterrasse
Fuente Álamo de Murcia ist eine Ortschaft und Gemeinde in der Region Murcia im Süden Spaniens. Sie liegt 22 km nordwestlich von Cartagena und 35 km südwestlich von Murcia.
Die Stadt liegt im Becken des Mar Menor, umgeben von den Gebirgszügen Algarrobo, Los Gómez, Los Victorias und Carrascoy. Das Wasser dieser Berge fließt hinunter in die Rambla de Fuente Álamo und dann in das Mar Menor.
Fuente Álamo liegt 30 Minuten vom Flughafen Murcia - Corvera entfernt. Die nächsten Geschäfte sind 6 km entfernt.