Exklusive Neubauwohnungen in Pilar de la Horadada, Costa Blanca
Modernes mediterranes Wohnen in Strandnähe
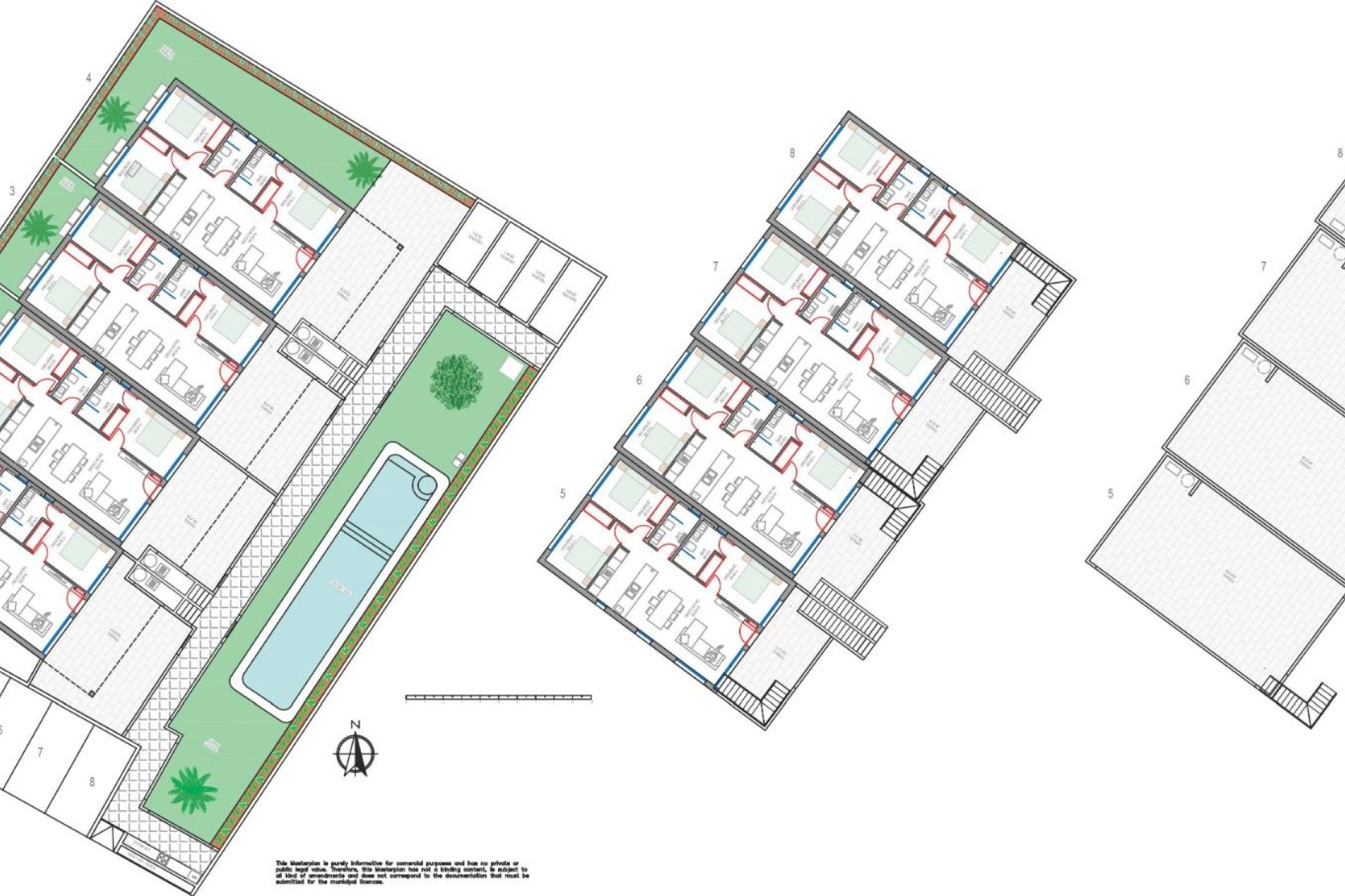
Entdecken Sie diese exklusive Neubauanlage mit nur 8 modernen Wohnungen in Pilar de la Horadada, nur wenige Gehminuten vom Stadtzentrum und nur 3,5 km von den schönen Stränden von Torre de la Horadada und Mil Palmeras entfernt. Diese charmante Küstenstadt im südlichsten Teil der Costa Blanca ist bekannt für ihre entspannte Atmosphäre, ihren traditionellen spanischen Charme und ihre hervorragende Infrastruktur. Die Bewohner genießen eine Vielzahl von Dienstleistungen wie Supermärkte, Restaurants, Geschäfte und Freizeitbereiche, die alle nur wenige Minuten entfernt sind.
Elegante Häuser, die auf Komfort und Stil ausgelegt sind
Die Wohnanlage bietet eine Auswahl an Erdgeschosswohnungen mit Terrassen und privaten Gärten oder Dachgeschosswohnungen mit großzügigen Terrassen und privaten Sonnenterrassen. Jedes Haus verfügt über 3 Schlafzimmer und 2 Badezimmer, eines davon en suite, die mit modernen Linien und hochwertigen Oberflächen gestaltet sind, um maximalen Komfort zu gewährleisten.
Der Wohnkomplex verfügt über einen Gemeinschaftspool, der von Landschaftsgärten umgeben ist und eine einladende und ruhige Umgebung für Entspannung und Freizeit bietet. Zu jeder Immobilie gehören außerdem ein privater Parkplatz und ein Abstellraum.
Hochwertige Ausstattungen und Premium-Ausstattung
Diese neu gebauten Häuser wurden mit hochwertigen Materialien und Liebe zum Detail errichtet. Zu den wichtigsten Ausstattungsmerkmalen gehören:
Aluminium-Außenfenster und -türen in Anthrazitgrau mit thermischer Trennung (Marke CORTIZO)
Vierfachverglasung mit Sonnenschutz
Elektrische Aluminiumrollläden in den Schlafzimmern
Hängende Toiletten und begehbare Duschen mit integriertem Bodenbelag
Badezimmermöbel mit LED-hinterleuchteten Spiegeln und elektrischen Handtuchhaltern
Voll ausgestattete Küche mit Miele-Geräten
LED-Innen- und Außenbeleuchtung im gesamten Haus
Komplette Klimaanlageninstallation über Kanäle (Fujitsu-System)
Perfekte Lage an der Costa Blanca
Pilar de la Horadada ist ideal gelegen, sowohl für einen dauerhaften Wohnsitz als auch für einen Urlaub. Die Stadt verbindet das Beste des traditionellen spanischen Lebens mit moderner Infrastruktur und der Nähe zum Meer.
Wichtigste Entfernungen:
Strände von Torre de la Horadada und Mil Palmeras: 3,5 km
Golfplatz Lo Romero: 6 km
Flughafen Murcia-Corvera: 40 km
Flughafen Alicante: 55 km
Yachthafen von San Pedro del Pinatar: 10 km
Ihr neues Zuhause in der Sonne erwartet Sie
Genießen Sie die perfekte Kombination aus Design, Komfort und mediterranem Lebensstil in diesen neu gebauten Häusern in Pilar de la Horadada. Ob Sie einen Urlaubsort oder einen ganzjährigen Wohnsitz suchen, dieses exklusive Projekt bietet die ideale Balance zwischen Qualität, Lage und modernem Wohnen.
Kontaktieren Sie uns noch heute für weitere Informationen oder um einen Besichtigungstermin zu vereinbaren.