EU PRESTIGE PARTNERS

Bungalow · Neue Gebäude

Torrevieja · Los Balcones
REF. NB-60041
340000€

Bungalow · Neue Gebäude

Torrevieja · Los Balcones

Charakteristik

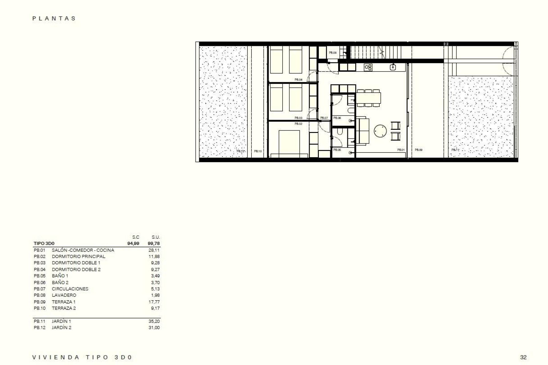
  • Meter 99m2
  • Grundstück 76m2
  • Schlafzimmer 3
  • Das Badezimmer 2
  • Schwimmbad Ja
Schlafzimmer: 3
Das Badezimmer: 2
Gebaut: 99m2
Nützlich: 94m2
Grundstück: 76m2
Schwimmbad: Ja
Entfernung zum Strand: 3500 Mts.
Storage / Trastero
Communal Pool
Near Schools
Near Commercial Center
Air Conditioning: Pre-Installed
Double Bedrooms: 3
Gated
Number of Parking Spaces: 1
Location: Coastal, Urbanisation
Garden
Terrace: 27 Msq.
Useable Build Space: 94 Msq.
Beach: 3500 Meters
Parking - Space

Beschreibung

Neubau-Wohnungen in Los Balcones, Torrevieja

Ort

Wenn Sie weitere Informationen wünschen, können Sie uns über Whatsapp kontaktieren oder das folgende Formular ausfüllen.

Kontakt über Whatsapp Kontakt über Whatsapp Whatsapp

Make an enquiry

Responsable del tratamiento: EU Prestige Partners, Finalidad del tratamiento: Gestión y control de los servicios ofrecidos a través de la página Web de Servicios inmobiliarios, Envío de información a traves de newsletter y otros, Legitimación: Por consentimiento, Destinatarios: No se cederan los datos, salvo para elaborar contabilidad, Derechos de las personas interesadas: Acceder, rectificar y suprimir los datos, solicitar la portabilidad de los mismos, oponerse altratamiento y solicitar la limitación de éste, Procedencia de los datos: El Propio interesado, Información Adicional: Puede consultarse la información adicional y detallada sobre protección de datos Aquí.
WhatsApp