Moderne Neubauvilla auf einem großen rustikalen Grundstück in Pinoso
Zeitgemäßes Wohnen in ruhiger ländlicher Umgebung
Entdecken Sie diese stilvolle Neubauvilla auf einem 10.700 m² großen rustikalen Grundstück am Rande von Pinoso, Alicante. Dieses moderne Haus wurde für Menschen entworfen, die Privatsphäre, Ruhe und eine enge Verbindung zur Natur suchen, und verbindet zeitgenössische Architektur mit dem Charme der spanischen Landschaft. Umgeben von Weinbergen, Mandel- und Olivenhainen bietet das Anwesen einen ruhigen Lebensstil, nur eine kurze Autofahrt von allen lokalen Dienstleistungen entfernt.
Geräumige einstöckige Villa mit privatem Pool
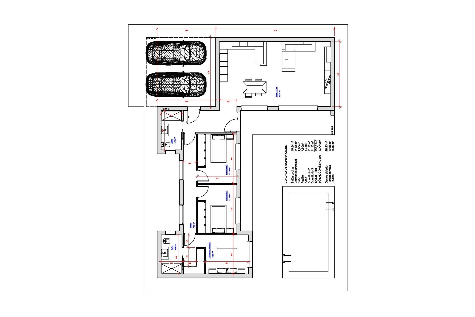
Die Villa ist auf einer Ebene verteilt und verfügt über 3 Schlafzimmer und 2 Badezimmer, eines davon en suite. Der offene Grundriss folgt einem L-förmigen Design, das den Wohnbereich vom Schlafbereich trennt und so für zusätzlichen Komfort und Privatsphäre sorgt. Der Tagesbereich verfügt über hohe Decken, die das Raumgefühl verstärken und den Innenraum mit natürlichem Licht durchfluten.
Im Außenbereich genießen Sie eine private Terrasse und einen Swimmingpool, ideal zum Entspannen und Unterhalten unter der mediterranen Sonne. Zum Anwesen gehört auch ein überdachter Parkplatz für zwei Autos, alles auf einem großen rustikalen Grundstück, das unendliche Möglichkeiten für Gartenarbeit, Freizeitbereiche oder einfach nur zum Genießen der Aussicht bietet.
Moderne Ausstattung und hochwertige Verarbeitung
Diese neu gebaute Villa ist mit einer Klimaanlage ausgestattet, die das ganze Jahr über für Komfort sorgt. Die Küche ist komplett eingerichtet und mit Geräten ausgestattet und bietet einen funktionalen und eleganten Raum für das tägliche Leben. Das moderne Design in Kombination mit hochwertigen Materialien sorgt für ein komfortables und pflegeleichtes Zuhause, das sich ideal für das permanente Wohnen oder als Rückzugsort auf dem Land eignet.
Lage in der Nähe der Stadt Pinoso
Die Immobilie befindet sich etwas außerhalb der Stadt Pinoso, einem charmanten Dorf im Landesinneren mit weniger als 8000 Einwohnern. Pinoso ist bekannt für sein entspanntes Lebenstempo und seine authentische spanische Atmosphäre und bietet eine Vielzahl von Annehmlichkeiten wie Bars, Restaurants, Geschäfte, ein 24-Stunden-Arztzentrum, Zahnärzte, Grund- und weiterführende Schulen, ein Theater und einen modernen Sportkomplex mit Außenpools, Tennisplätzen, Fußballfeldern und einem Fitnessstudio.
Das Stadtzentrum von Pinoso ist etwa 3 km entfernt. Die Stadt Alicante ist etwa 55 km entfernt, während die weißen Sandstrände der Costa Blanca etwa 50 km entfernt sind. Der internationale Flughafen Alicante ist etwa 60 km von der Immobilie entfernt. Die Region liegt auch in der Nähe der Grenze zu Murcia, was weitere Verbindungsmöglichkeiten und Lifestyle-Optionen bietet.
Ein authentischer spanischer Lebensstil inmitten der Natur
In Pinoso zu leben bedeutet, einen traditionellen ländlichen Lebensstil mit fast keinem Verkehr, offenen Landschaften und einem starken Gemeinschaftsgefühl zu genießen. Im Februar erwacht die umliegende Landschaft mit blühenden Mandelbäumen zum Leben und bietet ein spektakuläres Naturschauspiel.
Ihr Traumhaus auf dem Land wartet auf Sie
Diese moderne, neu gebaute Villa in Pinoso bietet die perfekte Balance zwischen zeitgemäßem Komfort und ruhigem Landleben. Kontaktieren Sie uns noch heute für weitere Informationen oder um eine Besichtigung zu vereinbaren und den ersten Schritt in Richtung Ihres neuen Zuhauses in der spanischen Landschaft zu machen.