EU PRESTIGE PARTNERS

Villa · Obra nueva

Aspe · Poligono 19
REF. NB-32979
614000€

Villa · Obra nueva

Aspe · Poligono 19

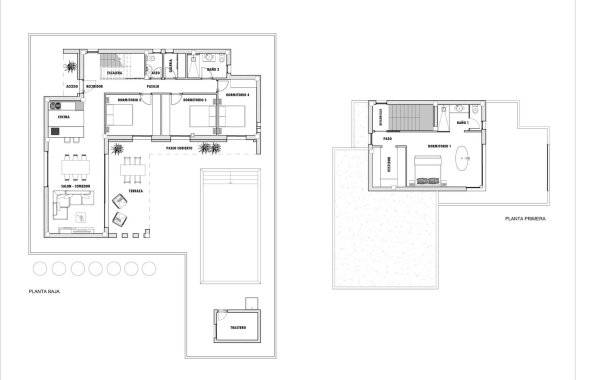
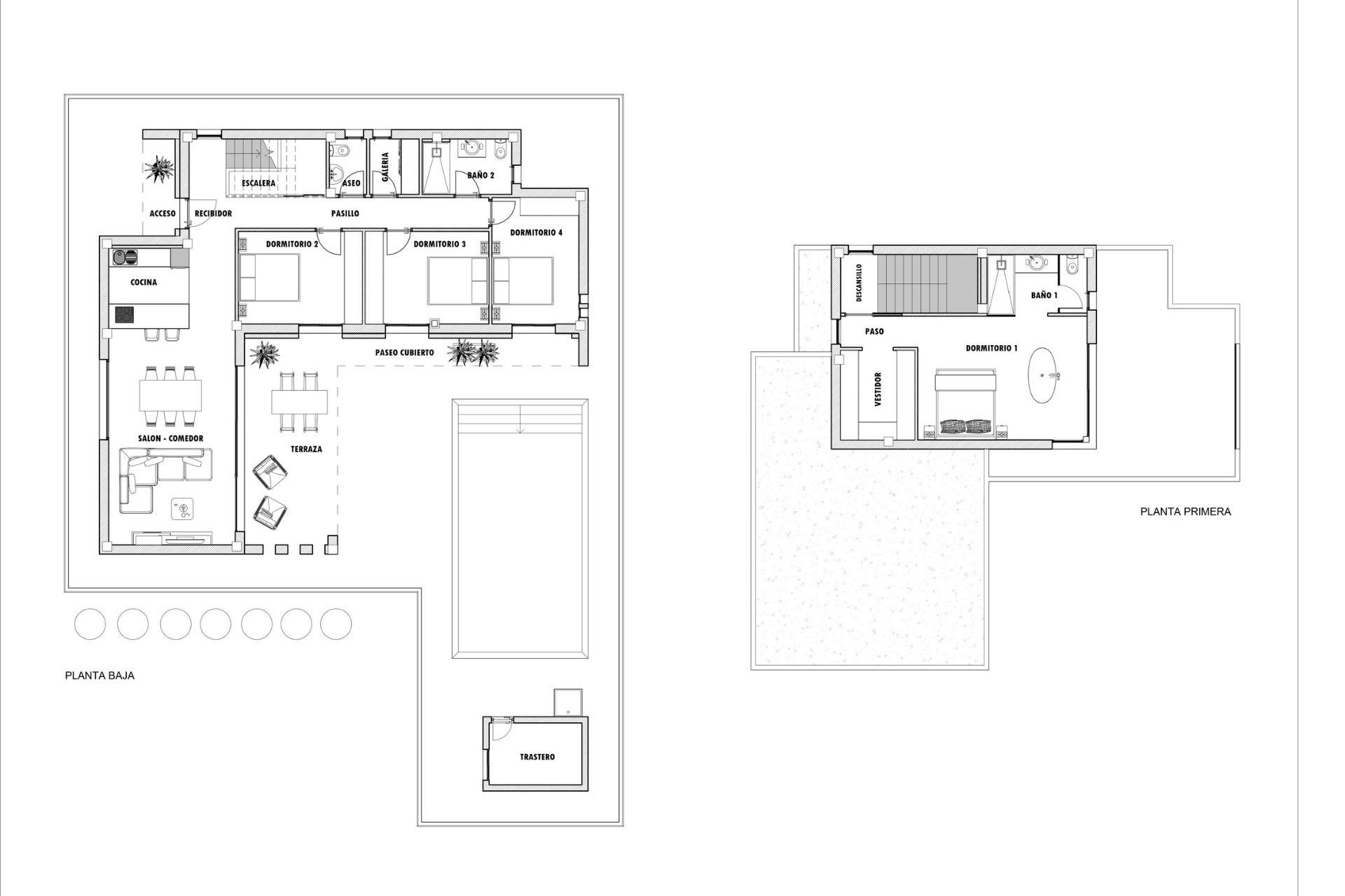
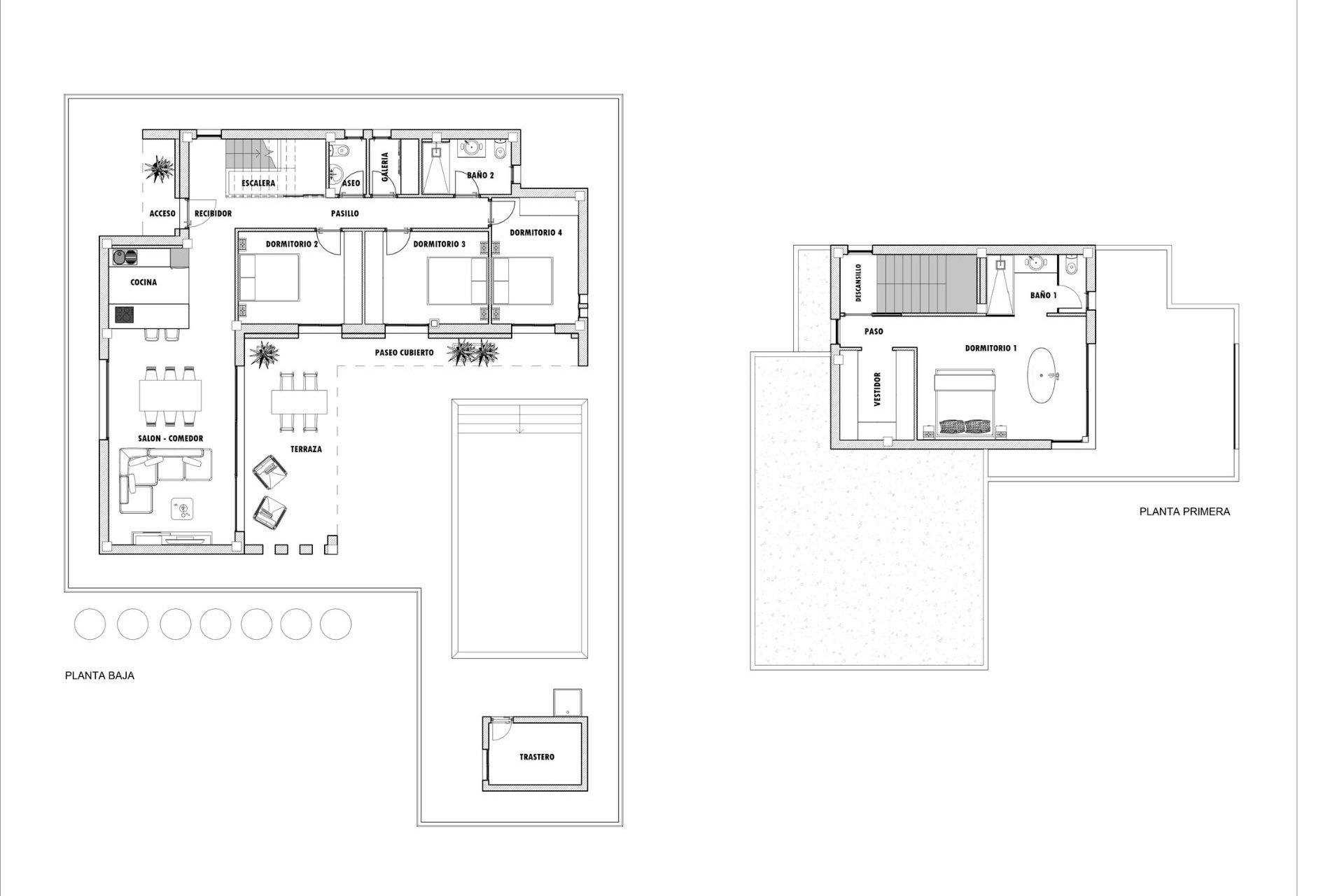
Características

  • metros 223m2
  • terreno 13.172m2
  • Habitaciones 4
  • Baños 3
  • Piscina
Habitaciones: 4
Baños: 3
Construidos: 223m2
Útiles: 183m2
Parcela: 13.172m2
Piscina:
Distancia a la playa: 40000 Mts.
Terrace: 34 Msq.
Beach: 25000 Meters
Parking - Space
Location: Mountain
Useable Build Space: 183 Msq.
Storage / Trastero
Private pool
Near Schools
Air Conditioning: Pre-Installed
Gated
Number of Parking Spaces: 1
Garden
Double Bedrooms: 4

Descripción

Villas de obra nueva situadas en término de Aspe.

Localización

Si desea más información, puede contactarnos por Whatsapp o rellenando el siguiente formulario.

contactar por Whatsapp contactar por Whatsapp Whatsapp

Realizar consulta

Responsable del tratamiento: EU Prestige Partners, Finalidad del tratamiento: Gestión y control de los servicios ofrecidos a través de la página Web de Servicios inmobiliarios, Envío de información a traves de newsletter y otros, Legitimación: Por consentimiento, Destinatarios: No se cederan los datos, salvo para elaborar contabilidad, Derechos de las personas interesadas: Acceder, rectificar y suprimir los datos, solicitar la portabilidad de los mismos, oponerse altratamiento y solicitar la limitación de éste, Procedencia de los datos: El Propio interesado, Información Adicional: Puede consultarse la información adicional y detallada sobre protección de datos Aquí.
WhatsApp