Adosados modernos cerca de campos de golf en Santa Rosalía (Murcia)
Viviendas de nueva construcción en un tranquilo entorno rural
Descubra esta atractiva promoción de adosados contemporáneos situada en el encantador pueblo de Santa Rosalía, en la Región de Murcia. Rodeada de algunos de los campos de golf más prestigiosos de la zona y a solo unos minutos en coche de las playas del Mar Menor, esta ubicación ofrece la combinación perfecta de tranquilidad, comodidad y vida al aire libre.
Santa Rosalía es un pueblo tradicional español con un ambiente acogedor, donde los residentes pueden disfrutar de tiendas locales, un supermercado, bares y restaurantes, incluido el popular La Almazara. Su ubicación estratégica entre Roda Golf, Mar Menor Golf y Los Alcázares lo convierte en un lugar muy atractivo tanto para residencias permanentes como para viviendas vacacionales.
Elegantes casas adosadas con solárium y zonas de estar al aire libre
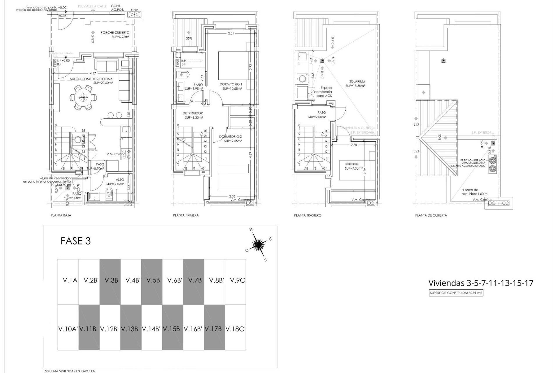
La promoción consta de 18 modernas casas adosadas de 2 o 3 dormitorios y 2 baños, diseñadas con una distribución contemporánea de planta abierta. Cada vivienda cuenta con un luminoso salón-comedor conectado a una cocina totalmente equipada con electrodomésticos, lo que crea un espacio funcional y confortable.
Todas las viviendas incluyen un solárium privado en la azotea con cocina de verano, ideal para disfrutar del clima mediterráneo, recibir invitados o relajarse al aire libre durante todo el año. Además, cada vivienda cuenta con una plaza de aparcamiento privada y un trastero situado en un garaje comunitario.
Acabados de calidad y prestaciones modernas
Estas viviendas están construidas con materiales de alta calidad y diseñadas para ofrecer comodidad y eficiencia energética. Entre sus prestaciones se incluyen un sistema aerotérmico para el agua caliente, preinstalación para aire acondicionado por conductos y baños totalmente equipados con muebles, espejos y mamparas de ducha.
La urbanización también cuenta con una piscina comunitaria, que ofrece un espacio perfecto para relajarse y disfrutar de los días soleados en un entorno tranquilo.
Ubicación privilegiada cerca del golf y del mar
Santa Rosalia goza de una ubicación ideal a solo 4,5 km de las playas de Los Alcázares, conocidas por sus aguas tranquilas y su largo paseo marítimo a lo largo del Mar Menor. Los alrededores son un paraíso para los amantes del golf, con varios campos de primera categoría a solo unos minutos.
La cercana localidad de Los Alcázares ofrece una amplia gama de servicios, restaurantes, tiendas y actividades de ocio, lo que hace que la vida cotidiana sea fácil y agradable.
Distancias a los principales puntos de interés
Playas de Los Alcázares: 4,5 km
Roda Golf: 3 km
Mar Menor Golf: 4 km
Cartagena: 25 km
Aeropuerto Internacional de Murcia: 30 km
Tu hogar ideal en la Costa Cálida
Esta promoción ofrece una excelente oportunidad para adquirir una moderna vivienda adosada en una ubicación tranquila y bien comunicada, cerca de campos de golf y del mar. Póngase en contacto con nosotros hoy mismo para recibir más información o concertar una visita y asegurarse su nuevo hogar en Santa Rosalía.