Luxury New Build Villas on the Frontline Beach in Puerto de Mazarrón
Exclusive Seafront Living in El Alamillo
Discover a unique new development of 11 luxury independent villas located in Puerto de Mazarrón, in the prestigious El Alamillo area, one of the most sought-after destinations on the Costa Cálida. This gated community offers direct access to the beach and promenade, providing the perfect blend of comfort, exclusivity, and Mediterranean lifestyle.
Spacious Villas with Private Pools and Sea Views
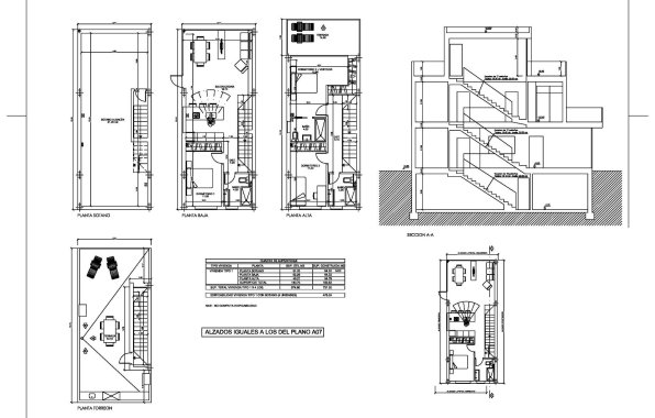
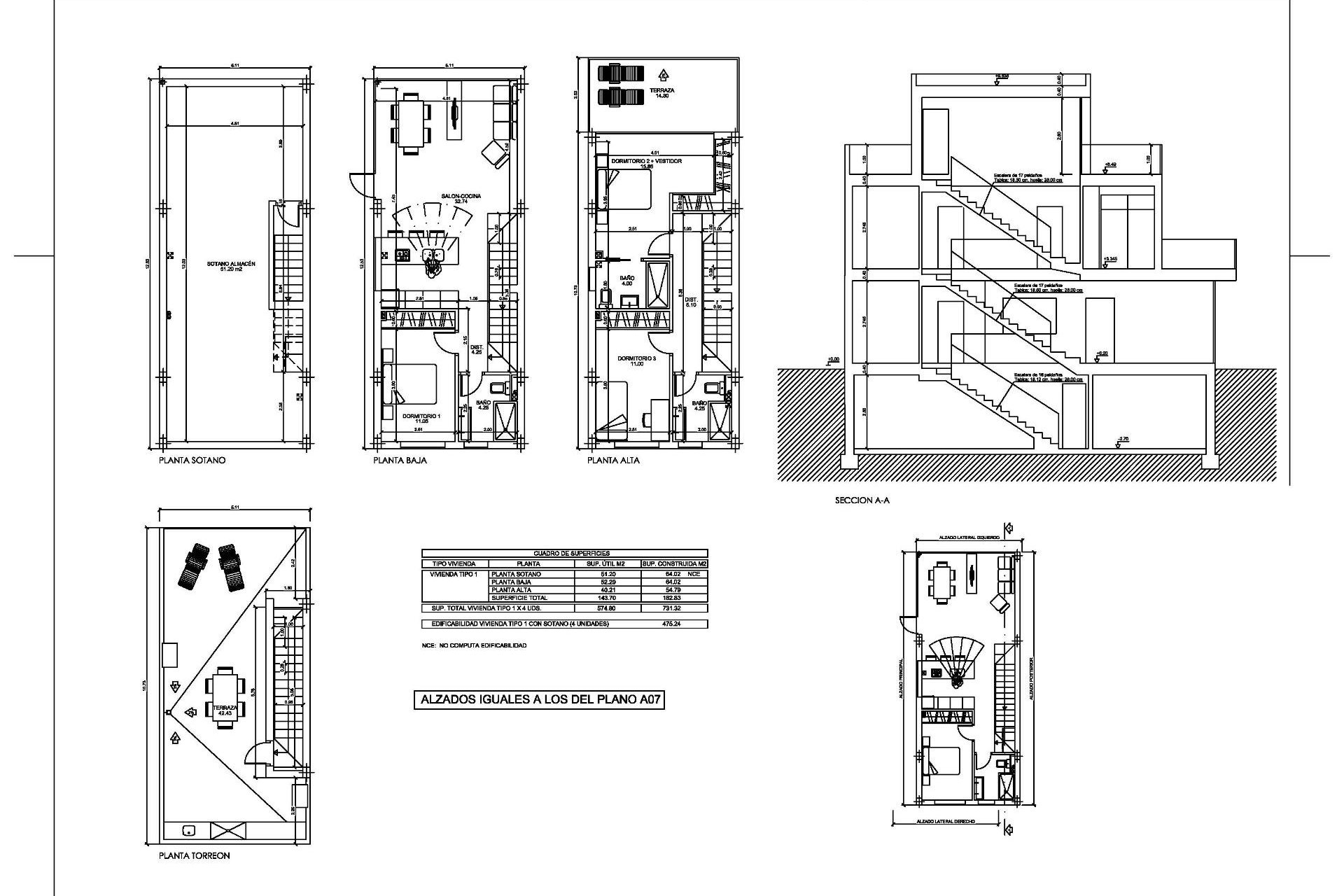
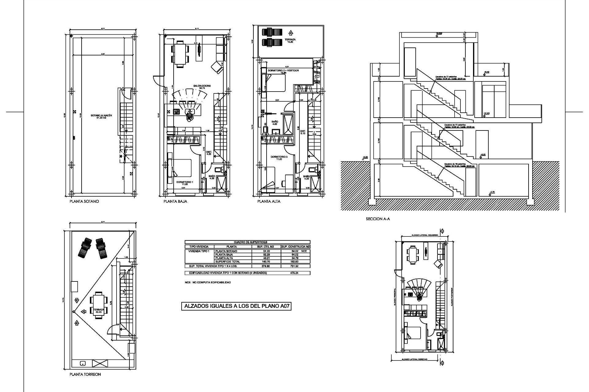
Each villa is set on plots starting from 259 m2 and designed with modern architecture across four levels: basement, ground floor, first floor, and private solarium. The homes feature 3 large bedrooms and 3 bathrooms (including an en-suite), making them ideal as both permanent residences and holiday retreats.
Key features include:
Private swimming pool of 8 x 3.5 m
Rooftop solarium with 2 x 2 m jacuzzi, summer kitchen, and sea views
Fully finished basements of 51.20 m2 with electric installation and water supply, perfect for a guest apartment or storage.
Fully equipped kitchens with appliances
Complete bathrooms with high-quality finishes
Ducted air conditioning (hot/cold)
Aerothermal hot water system
Outdoor summer kitchen by the pool
Pre-installation for electric car charging
Prime Location on the Costa Cálida
El Alamillo in Puerto de Mazarrón is known for its relaxed seaside atmosphere, sandy beaches, and excellent services. The villas are located just steps from the promenade, offering daily access to the Mediterranean lifestyle.
Distances to key points of interest:
Mazarrón town center: 4 km
Cartagena: 35 km
Murcia city: 70 km
Murcia International Airport (Corvera): 40 km
Alicante Airport: 135 km
Golf courses (Camposol, Hacienda del Álamo, and others): 20–30 km
Mazarrón Marina and port area: 2 km
Delivery and Investment Opportunity
With delivery scheduled for summer 2026, this project represents a unique opportunity to secure a frontline beach villa in a prime location with high rental potential and long-term value.
Secure Your Dream Villa Today
Experience the perfect balance between modern design, comfort, and the beauty of the Mediterranean Sea. Don’t miss out on this rare chance to live directly on the beach in Puerto de Mazarrón.
Contact us today to schedule a visit and reserve your new luxury villa by the sea.